我之前在新店大坪林附近住了十年,直到兩年前搬離,對大坪林的周邊環境非常熟悉,所以這次收到新建案大坪林ONE的廣告簡訊,對兩房房型有興趣,就預約去現場看看!
基地位於新北市新店區大豐路與民族路口,從大坪林站一號出口沿著北新路走到麥當勞後右轉進入巷子再左轉,便可找到基地,步行到捷運站的距離約450公尺。基地1789坪,20~45坪,主打2~4房,也有少數套房,地上蓋29樓、地下6F。總戶數四百多戶,地主戶約一百多戶,車位配比1:1,公設比30.x%,預計2026年7月完工。
-SRC結構
這幾年SRC鋼骨鋼筋混凝土結構開始盛行,大坪林ONE就是用SRC結構的大樓,現場展示的模型讓你一看就了解它的制震工法,樓層隔音方面有做中空樓板,所以每層樓雖然有3米4,但扣掉中空樓板的高度就剩3米1x。由萬盟機構投資興建,遠雄集團的東源營造來施作。
這幾年SRC鋼骨鋼筋混凝土結構開始盛行,大坪林ONE就是用SRC結構的大樓,現場展示的模型讓你一看就了解它的制震工法,樓層隔音方面有做中空樓板,所以每層樓雖然有3米4,但扣掉中空樓板的高度就剩3米1x。由萬盟機構投資興建,遠雄集團的東源營造來施作。
-室內配備
我最在意的鋁門窗是選用YKK鋁門窗,每次看到用YKK鋁門窗的建案,就覺得對一半了。此外,比較吸引我的是他用了日本INAX衛浴及LIXIL集團SUNWAVE廚具,日前看過的建案絕大部分都用TOTO、廚具比較好的話就用Cleanup,所以這次的配備真的讓我眼睛一亮,INAX的免治馬桶看起來也比TOTO高級很多。
我最在意的鋁門窗是選用YKK鋁門窗,每次看到用YKK鋁門窗的建案,就覺得對一半了。此外,比較吸引我的是他用了日本INAX衛浴及LIXIL集團SUNWAVE廚具,日前看過的建案絕大部分都用TOTO、廚具比較好的話就用Cleanup,所以這次的配備真的讓我眼睛一亮,INAX的免治馬桶看起來也比TOTO高級很多。
電梯選用三菱電機,都是17人的大電梯,如果以後要搬運大型家具、鋼琴、或是IKEA(236公分高)的衣櫃,都不用擔心搬不上去了。
大門的花色雖然還沒有確認,但尺寸已經出來,是寬120公分、高210公分的寬敞大門。門鎖用的是Yale耶魯電子鎖,屋內連接警衛室的對講機也選了很新的款式,觸控式大螢幕,影像看起來非常清晰。
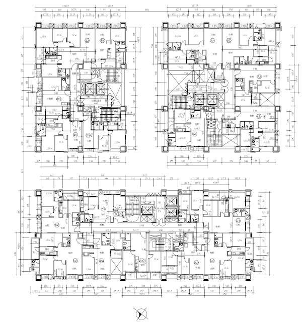
-格局怎麼選?
這次兩房格局主要在CD棟,一層8~9戶,高樓層8戶,低樓層9戶,共用三台17人電梯,面外的方向是朝西南,有三間兩房格局可選擇,兩房格局常會出現一間房間面向陽台的規劃,所以如果能選到客廳及每間房間都有朝外的窗戶採光,就很難得。
這次兩房格局主要在CD棟,一層8~9戶,高樓層8戶,低樓層9戶,共用三台17人電梯,面外的方向是朝西南,有三間兩房格局可選擇,兩房格局常會出現一間房間面向陽台的規劃,所以如果能選到客廳及每間房間都有朝外的窗戶採光,就很難得。
現場樣品屋有兩間兩房格局可以參考,一間是C5格局坪數26.8(不含雨遮),面向西南,一進門是一個面寬不窄的客廳,兩間房間都有對外窗,廚房是開放式的空間,與餐廳空間結合使用,所以用的是IH爐,雖然大家還是習慣用瓦斯爐,但我覺得IH爐比較安全,過熱也會自動斷電,是未來的趨勢。浴廁空間比三房的還大,雖然沒有浴缸,但寬敞的空間使用起來很舒適。缺點是房間的寬度較窄,放雙人床後床腳幾乎就會抵到牆,但房間的長度是足夠的。另一個優點是有對外陽台,不是那種卡在空井裡的工作陽台,而是落地窗外的陽台。
另一間兩房樣品屋(A3),雖然廚房有獨立空間(廚房是瓦斯爐),但有一間房間窗戶開向陽台,總坪數也較大,我就不列入考慮了。更多其他房型格局請參考591網站。
-社區公設
健身房、媽媽廚藝教室、幼兒遊戲室、瑜珈教室等。
價格方面,16樓以上的高樓層開價71.x/坪,20樓以上開價73.x/坪,車位200萬起。
更多詳細圖面及尺寸資料可參考萬盟集團官網上的都市更新計畫書。



沒有留言:
張貼留言